Ihr Haus - mitten in Othmarschen
Hamburg - Othmarschen, Deutschland
Kaufpreis:
1.520.000 Euro
Eckdaten
| Objekt ID: | B-0483 |
|---|---|
| Baujahr: | 1979 |
| Art des Energieausweises: | verbrauchsorientiert |
| Energieverbrauch-Kennwert: | 95.20 kWh/m² |
| Grundstücksfläche: | ca. 569 m² |
| Wohnfläche: | ca. 178 m² |
| Zimmer: | 6 |
| Schlafzimmer: | 5 |
| Bäder: | 2 |
| Garage/Stellplätze: | 1 |
| Kaufpreis: | 1.520.000 EUR |
Objektbeschreibung
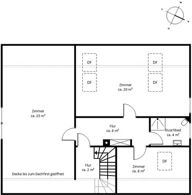
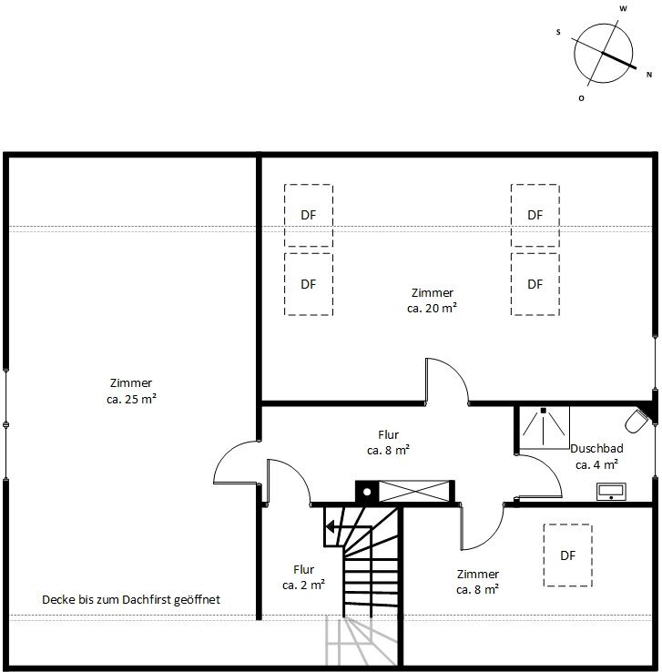
Dieses charmante Einfamilienhaus aus dem Jahr 1979 beeindruckt durch seine großzügige Raumaufteilung und den hohen Wohnkomfort. Auf rund 178 m² Wohnfläche verteilen sich sechs helle Zimmer, darunter fünf gemütliche Schlafzimmer, die vielfältige Nutzungsmöglichkeiten bieten. Herzstück des Hauses ist der lichtdurchflutete Wohn- und Essbereich mit offener Küche, ausgestattet mit hochwertigen Miele-Geräten aus dem Jahr 2012, der direkten Zugang zum sonnigen Außenbereich ermöglicht. Im Erdgeschoss befinden sich zwei Schlafzimmer, ein modernes Vollbad sowie ein praktisches Gäste-WC. Das Obergeschoss verfügt über drei weitere Schlafzimmer und ein Duschbad; von hier aus ist auch der gedämmte Dachboden erreichbar.
Der geräumige Keller bietet dank separatem Außenzugang flexible Gestaltungsmöglichkeiten, etwa als Hobby- oder Arbeitsräume. Die zuletzt 2021 modernisierte Heizungsanlage sorgt zusammen mit der gedämmten Fassade und den 2008 erneuerten Fenstern für angenehme Energieeffizienz. Außenjalousien an allen Fenstern im Erdgeschoss bieten zusätzlichen Komfort. Ein Energieausweis liegt vor. der Glaswechsel auf Isolierglas wäre eine mögliche Effizienzmaßnahme für die Zukunft. Abgerundet wird dieses attraktive Angebot durch eine zum Haus gehörende Garage, die bequem vom Garten aus zugänglich ist. Die Dichtheitsprüfung wurde bereits erfolgreich durchgeführt.
Lage
Othmarschen zählt zu den besonders bevorzugten Wohnlagen in den Elbvororten. Die Elbe und die vielen Parks der Umgebung laden zu ausgedehnten Spaziergängen ein und bieten einen großen Erholungswert. Die nahe S-Bahnstation Othmarschen und diverse Buslinien bieten eine bequeme Anbindung an die Hamburger Innenstadt. Einkaufsmöglichkeiten für den täglichen Bedarf finden Sie in der Umgebung, zum Beispiel auch im Elbe-Einkaufszentrum und in der vielseitigen Waitzstraße. Diverse Schulzweige und Sportvereine befinden sich in der Nähe.
Courtage
3,57 % inkl. MwSt.
Kontakt
Büro Blankenese
Blankeneser Bahnhofstraße 8
22587 Hamburg
Tel. (040) 86 44 44
Fax. (040) 86 64 50 15
Alternative Objekte
Kaufen, Haus, Hamburg - Uhlenhorst, Deutschland
ca. 420 m²
Wohnfläche8
Zimmer650 m²
GrundstückKaufen, Haus, Hamburg - Blankenese, Deutschland
ca. 181 m²
Wohnfläche5
Zimmer210 m²
GrundstückKaufen, Haus, Hamburg - Alsterdorf, Deutschland
ca. 435 m²
Wohnfläche12,5
Zimmer1.184 m²
Grundstück