Wohnen auf höchstem Niveau im Park

Hamburg - Othmarschen, Deutschland

Mietpreis:

6.950 Euro

(zzgl. Nebenkosten)


Eckdaten

Objekt ID: B-1000/V03
Baujahr: 1930
Grundstücksfläche: ca. 80.000 m²
Wohnfläche: ca. 329 m²
Zimmer: 5
Schlafzimmer: 4
Bäder: 3
Garage/Stellplätze: 2
Mietpreis: 6.950 EUR
Warmmiete: 8.465 EUR
Nebenkosten: 1.515 EUR
Heizkosten enthalten:

Objektbeschreibung

Die Reemtsma Villa „Haus K. in O.“ wurde 1930–1932 nach einem Entwurf von Martin Elsaesser als Wohnhaus für Philipp F. Reemtsma erbaut – ein architektonischer Meilenstein der Moderne in den Elbvororten. Sie liegt inmitten des ca. 8 ha großen, denkmalgeschützten Reemtsma Parks mit altem Baumbestand, weitläufigen Rasenflächen, Teich, Spielplatz und künstlerisch gestalteten Blickachsen.

Die Villa wurde 2012 denkmalgerecht in vier exklusive Einheiten umgewandelt. Dabei wurden originale Stilelemente mit moderner Architektur sensibel kombiniert. Die hier angebotene Einheit erstreckt sich über zwei Wohnetagen plus Untergeschoss und besitzt einen separaten Eingang im Stil eines Stadthauses. Das großzügige Wohn- und Esszimmer mit Blick in den Park ist über eine aufwendig restaurierte Messingtür zugänglich. Die exklusive Warendorf-Küche kann per Schiebetür geöffnet oder geschlossen werden. Von hier führt der Zugang auf die sonnige Südterrasse.

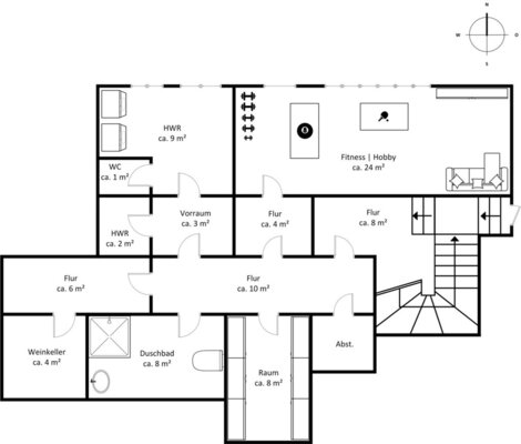
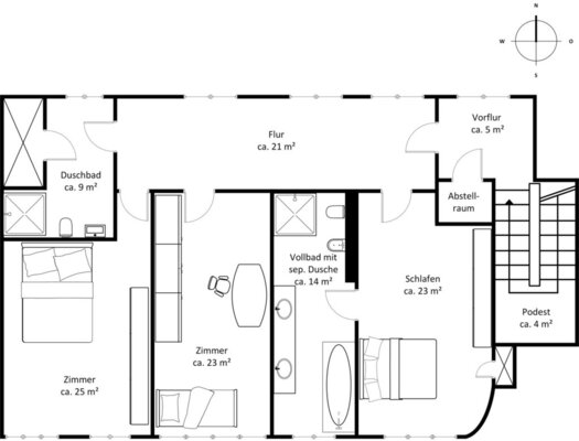
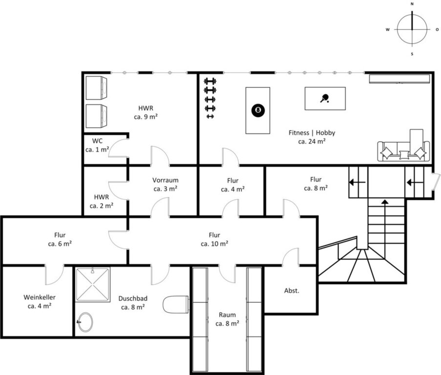
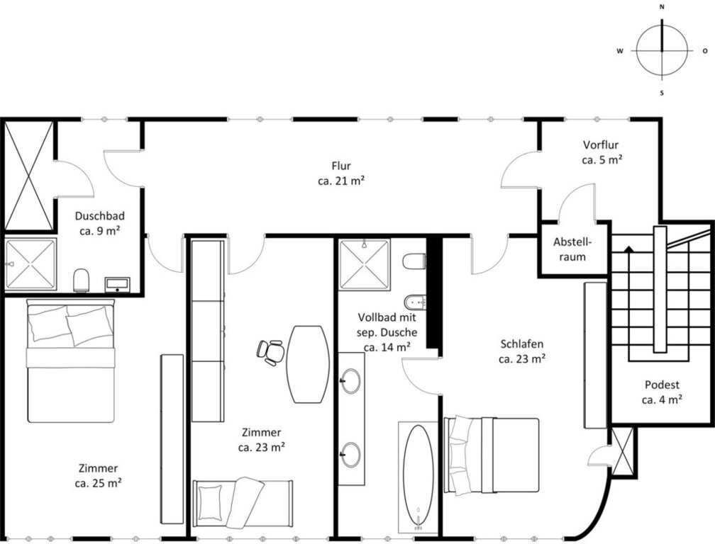
Ein Schlafzimmer mit Bad en suite, Gäste-WC und Hauswirtschaftsraum befinden sich im Erdgeschoss. Im Obergeschoss liegen das Hauptschlafzimmer mit Bad en suite, zwei weitere Schlafzimmer sowie ein zusätzliches Bad. Das Untergeschoss bietet vielseitige Nutzfläche, ein weiteres Bad und einen großen Hauswirtschaftsbereich.

Tiefgaragenstellplätze stehen in der großzügigen Garage zur Verfügung (mtl. á € 110 zzgl. € 15 NK).

Im Park befindet sich zudem ein Medical Fitness Club mit verschiedenen Angeboten.

Ausstattung

Einbauküche
Keller
Boden Parkett

Lage

Diese Immobilie befindet sich in dem beliebten Elbvorort Othmarschen. Einkaufsmöglichkeiten bietet die nahe gelegene Waitzstraße mit einer Vielzahl an Einzelhandelsgeschäften sowie das Elbe-Einkaufszentrum. Kindergärten, Grund- und weiterführende Schulen, wie z.B. auch die Internationale Schule, sind in nur wenigen Minuten zu erreichen.

Der Jenischpark, die Elbe und verschiedene Sportvereine, wie auch der Groß Flottbeker Golf-, Hockey- und Tennisclub, befinden sich in der unmittelbaren Umgebung. Die Anbindung an die öffentlichen Verkehrsmittel ist aufgrund der S-Bahnstation „Othmarschen“ sowie verschiedener Buslinien als sehr gut zu bezeichnen. Mit der S-Bahn ist die Hamburger Innenstadt in nur 15 Minuten erreichbar.


Courtage

6,25 % inkl. 19 % MwSt. Bei wirksamem Abschluss eines notariellen Kaufvertrages ist eine Maklercourtage in Höhe von 6,25 % inkl. 19 % MwSt., bezogen auf den vereinbarten Kaufpreis, verdient und fällig und vom Käufer an die Firma MEISSLER & CO zu zahlen, die hierdurch einen unmittelbaren Zahlungsanspruch gegenüber dem Käufer erhält. Die Grunderwerbsteuer sowie die Notar- und Gerichtskosten sind vom Käufer zu tragen. Alle Angaben über diese Immobilie beruhen auf Informationen, die uns der Auftraggeber zur Verfügung gestellt hat. Für die Richtigkeit, Aktualität und Vollständigkeit dieser Angaben übernehmen wir keine Gewähr. Irrtum und Zwischenverkauf vorbehalten.

Kontakt

Büro Blankenese

Blankeneser Bahnhofstraße 8
22587 Hamburg

Tel. (040) 86 44 44
Fax. (040) 86 64 50 15

Alternative Objekte

Mieten, Wohnung, Hamburg - Othmarschen, Deutschland

ca. 338 m²

Wohnfläche

6

Zimmer

Mieten, Wohnung, Hamburg - Nienstedten, Deutschland

ca. 192 m²

Wohnfläche

3

Zimmer

Mieten, Wohnung, Hamburg - Blankenese, Deutschland

ca. 216 m²

Wohnfläche

5

Zimmer