Stadthaus in bevorzugter Wohngegend
Hamburg - Othmarschen, Deutschland
Kaufpreis:
1.190.000 Euro
Eckdaten
| Objekt ID: | W-0023 |
|---|---|
| Baujahr: | 1985 |
| Art des Energieausweises: | verbrauchsorientiert |
| Energieverbrauch-Kennwert: | 94.00 kWh/m² |
| Grundstücksfläche: | ca. 616 m² |
| Wohnfläche: | ca. 109 m² |
| Zimmer: | 4 |
| Schlafzimmer: | 3 |
| Bäder: | 1 |
| Garage/Stellplätze: | 1 |
| Kaufpreis: | 1.190.000 EUR |
Objektbeschreibung
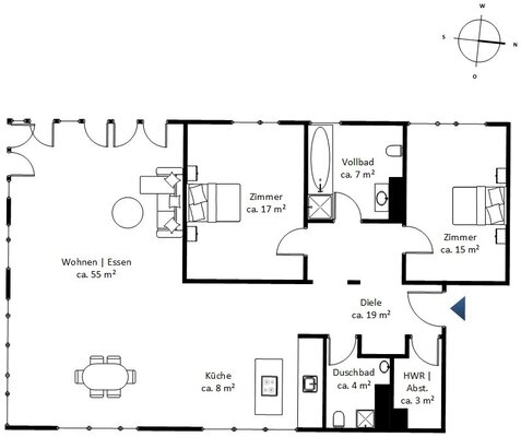
Das verbundene Einfamilienhaus erstreckt sich über die Ebenen im Erdgeschoss, im Obergeschoss sowie im ausgebauten Spitzboden, der als zusätzliche Nutzfläche dient. Ein vollunterkellerter Bereich mit Sauna sowie einer Einzelgarage ergänzen das Angebot. Die Gesamtgrundstücksgröße mit insgesamt zwei Doppelhäusern beläuft sich auf 616 m².
Im Erdgeschoss begrüßt Sie ein einladender Wohnbereich, der dank großzügiger Fensterflächen einen Blick in den Garten bietet. Eine angrenzende Terrasse und der schöne Garten erweitern den Wohnbereich in den warmen Monaten des Jahres. Der gemütliche Holzkamin sorgt für eine wohlige Atmosphäre. Die separate Küche bietet ausreichend Platz und könnte dem Wohn- und Essbereich zugeschaltet werden. Von der Küche aus hat man einen direkten Blick in den Vorgarten. Ein Gäste-WC ergänzt die Ebene im Erdgeschoss.
Das Obergeschoss erreicht man über eine Holztreppe. Es umfasst drei Zimmer sowie ein Vollbad mit separater Dusche. Der ausgebaute Spitzboden bietet praktische Nutzfläche und ergänzt das Raumangebot. Insgesamt bietet das Haus eine ideale Aufteilung sowohl für Familien als auch für Paare. Im Untergeschoss stehen mehrere Räume für Hauswirtschaft, Lager und Freizeit zur Verfügung. Ein Saunabereich mit Dusche befindet sich im hinteren Bereich. Eine Einzelgarage direkt am Haus sorgt für komfortables Parken.
Die Beheizung des Hauses erfolgt über eine Gaszentralheizung (2010).
Ausstattung
| Einbauküche | |
|---|---|
| Keller | |
| Kamin / Ofen |
Lage
Dieses verbundene Einfamilienhaus befindet sich in einer der begehrtesten Wohnlagen Hamburgs: im grünen und vornehmen Stadtteil Othmarschen. Die unmittelbare Umgebung ist geprägt von großzügigen Gärten, alten Baumbeständen und klassischer Villenarchitektur. In nur wenigen Gehminuten erreichen Sie den Jenischpark und den Elbstrand und profitieren von diesen beeindruckenden Kulissen für Erholung und Freizeit. Die Waitzstraße ist nur wenige Gehminuten entfernt. Hier finden Sie zahlreiche Geschäfte für den täglichen Bedarf, Boutiquen, Cafés und Restaurants sowie diverse Arztpraxen. Der ebenfalls nahe gelegene Wochenmarkt in Groß Flottbek rundet das Angebot mit frischen regionalen Produkten ab. Familien mit Kindern profitieren besonders von der hervorragenden Infrastruktur: Sämtliche Schulformen, darunter auch mehrere Gymnasien sowie Kindergärten befinden sich in unmittelbarer Umgebung. Die Anbindung an den öffentlichen Nahverkehr ist optimal.
Courtage
3,57 % inkl. ges. MwSt.
Kontakt
Büro Blankenese
Blankeneser Bahnhofstraße 8
22587 Hamburg
Tel. (040) 86 44 44
Fax. (040) 86 64 50 15
Alternative Objekte
Kaufen, Haus, Hamburg - Nienstedten, Deutschland
ca. 222 m²
Wohnfläche7
Zimmer890 m²
GrundstückKaufen, Haus, Hamburg - Alsterdorf, Deutschland
ca. 435 m²
Wohnfläche12,5
Zimmer1.184 m²
GrundstückKaufen, Wohnung, Hamburg - Nienstedten, Deutschland
ca. 161 m²
Wohnfläche5
Zimmer