Exklusives Wohnen im Reemtsma Park
Hamburg - Othmarschen, Deutschland
Mietpreis:
3.870 Euro
(zzgl. Nebenkosten)
Eckdaten
| Objekt ID: | B-1000/C03 |
|---|---|
| Baujahr: | 1953 |
| Art des Energieausweises: | verbrauchsorientiert |
| Energieverbrauch-Kennwert: | 49.30 kWh/m² |
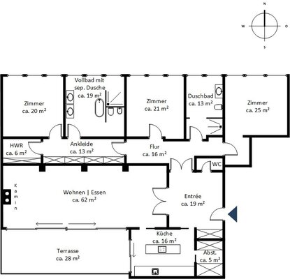
| Wohnfläche: | ca. 256 m² |
| Zimmer: | 4 |
| Schlafzimmer: | 3 |
| Bäder: | 2 |
| Garage/Stellplätze: | 2 |
| Mietpreis: | 3.870 EUR |
| Warmmiete: | 4.998 EUR |
| Nebenkosten: | 1.128 EUR |
| Heizkosten enthalten: |
Objektbeschreibung
Diese Wohnung liegt im rund acht Hektar großen, mit altem Baumbestand durchzogenen Reemtsma Park – einer exklusiven Parklandschaft nahe der Elbe, dem Jenischpark sowie den Ortszentren von Nienstedten und Othmarschen. Der denkmalgeschützte Park beeindruckt mit weitläufigen Rasenflächen, einem Naturteich, aufwendiger Gartenarchitektur, landschaftsarchitektonischen Himmelsspiegeln und einem Spielplatz. Die Bestandsgebäude wurden im Jahre 2008 umfangreich saniert und exklusiv ausgestattet.
Über ein großzügiges Entrée betritt man das ca. 62 m² große Wohn- und Esszimmer mit bodentiefen Fenstern und Kamin. Eine große Schiebetür öffnet den Zugang zur Südterrasse mit Blick ins Grüne. Die moderne Poggenpohl-Küche mit Miele-Geräten ist separiert, lässt sich aber durch eine Schiebetür öffnen. Ein Abstellraum mit Einbauschränken ergänzt das Platzangebot.
Die Schlafzimmer sind geschickt vom Wohnbereich getrennt. Das Hauptschlafzimmer verfügt über eine Ankleide mit Einbauschränken und ein hochwertiges Bad mit freistehender Wanne, Doppelwaschbecken und separater Dusche. Zwei weitere Zimmer dienen flexibel als Kinder-, Arbeits- oder Gästezimmer. Ein zweites Bad rundet den Grundriss ab.
Die Wohnung wird vor Übergabe umfangreich renoviert, u.a. wird ein neuer Eichenparkettboden verlegt sowie ein Großteil der Holzteile im hellen Farbton gestaltet.
Tiefgaragenstellplätze stehen in der großzügigen Garage zur Verfügung (mtl. á € 110 zzgl. € 15 NK)
Ausstattung
| Einbauküche | |
|---|---|
| Boden | Parkett |
| Kamin / Ofen |
Lage
Diese Immobilie befindet sich in dem beliebten Elbvorort Othmarschen. Einkaufsmöglichkeiten bietet die nahe gelegene Waitzstraße mit einer Vielzahl an Einzelhandelsgeschäften sowie das Elbe-Einkaufszentrum. Kindergärten, Grund- und weiterführende Schulen, wie z.B. auch die Internationale Schule, sind in nur wenigen Minuten zu erreichen.
Der Jenischpark, die Elbe und verschiedene Sportvereine, wie auch der Groß Flottbeker Golf-, Hockey- und Tennisclub, befinden sich in der unmittelbaren Umgebung. Die Anbindung an die öffentlichen Verkehrsmittel ist aufgrund der S-Bahnstation „Othmarschen“ sowie verschiedener Buslinien als sehr gut zu bezeichnen. Mit der S-Bahn ist die Hamburger Innenstadt in nur 15 Minuten erreichbar.
Courtage
Gemäß § 2 (1a) des Wohnungsvermittlungsgesetzes dürfen wir als Immobilienmakler von Wohnungssuchenden für die Vermittlung eines Wohnungsmietvertrages keine Maklercourtage fordern, uns versprechen lassen oder annehmen. Alle Angaben über diese Wohnungen beruhen auf Informationen, die uns die Auftraggeber zur Verfügung gestellt haben. Für die Richtigkeit, Aktualität und Vollständigkeit dieser Angaben übernehmen wir keine Gewähr. Irrtum und Zwischenvermietung vorbehalten.
Kontakt
Büro Blankenese
Blankeneser Bahnhofstraße 8
22587 Hamburg
Tel. (040) 86 44 44
Fax. (040) 86 64 50 15
Alternative Objekte
Mieten, Wohnung, Hamburg - Nienstedten, Deutschland
ca. 78 m²
Wohnfläche2
ZimmerMieten, Wohnung, Hamburg - Othmarschen, Deutschland
ca. 338 m²
Wohnfläche6
ZimmerMieten, Wohnung, Hamburg - Blankenese, Deutschland
ca. 216 m²
Wohnfläche5
Zimmer