Exklusives Penthouse am Jenischpark
Hamburg - Othmarschen, Deutschland
Kaufpreis:
2.850.000 Euro
Eckdaten
| Objekt ID: | N-0100/Whg.10 |
|---|---|
| Baujahr: | 2017 |
| Art des Energieausweises: | verbrauchsorientiert |
| Energieverbrauch-Kennwert: | 65,4 kWh/m² |
| Energieefizienzklasse: | B |
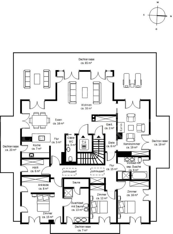
| Wohnfläche: | ca. 219 m² |
| Zimmer: | 5 |
| Schlafzimmer: | 3 |
| Bäder: | 2 |
| Kaufpreis: | 2.850.000 EUR |
Objektbeschreibung
Die beiden Villen wurden 2017 auf einem ca. 2.700 m² großen Grundstück gebaut und fügen sich in einem modern interpretierten, nordisch-klassizistischen Stil harmonisch in die Nachbarschaft zum Jenischhaus ein. Dieses außergewöhnliche und elegante Penthouse thront über den Baumkronen mit einem traumhaften Blick über die weitläufigen Wiesen eines der schönsten Landschaftsparks Hamburgs, dem Jenischpark.
Der Besucher erreicht die Wohnung bequem über den Fahrstuhl. Ca. 219 m² Wohnfläche verteilen sich über die gesamte Endetage. Hier öffnet sich der sehr großzügige, lichtdurchflutete Wohn-/ Essbereich mit einer bestechenden Deckenhöhe von 3,30 Meter. Der Wohn- und Essbereich bildet den Mittelpunkt der Wohnung. Die großen und schwenkbaren Fenster öffnen diesen Bereich zu den geräumigen Dachterrassen und geben den Blick in den Jenischpark frei. Markisen sorgen hier für den nötigen Sonnenschutz.
Dem Essbereich schließt sich die offene, in Weiß gehaltene Poggenpohl Küche mit Geräten der Marken Miele sowie ein Bora Herd mit Abzug an. Eine Schiebetür verbindet den Wohnbereich mit einer Bibliothek mit Kamin. Neben der Küche ist ein großer Hauswirtschaftsraum gelegen, welcher ausreichend Stauraum und auch Platz für die Waschmaschine und den Trockner bietet. Der umlaufende Flur führt zu den Privaträumen. Das sehr geräumige Elternschlafzimmer ist mit einem eleganten Bad en suite mit Fenster verbunden. Das Bad besticht durch großflächige Feinsteinplatten und beherbergt eine Sauna sowie eine großzügige Dusche mit einer großflächigen Regendusche. Zwei weitere Schlafzimmer und ein Vollbad runden das Raumangebot ab.
Fein geputzte Wände und durchgehendes Eichenholzparkett betonen die pure Behaglichkeit und Eleganz der Wohnung. Eine Fußbodenheizung garantiert angenehmen Komfort. Von den bodentiefen Fenstern profitieren alle Räumlichkeiten, die für eine besondere Wohlfühlatmosphäre sorgen. Die hochwertige Ausstattung verleiht der Wohnung ein edles Ambiente.
Eine Alarmanlage sowie ein Smart Home System ermöglichen höchstmöglichen Komfort und Sicherheit. Ein geräumiger Kellerraum ist der Wohnung zugehörig. Zwei Tiefgaragenstellplätze, einer davon mit Wallbox, gehören für jeweils EUR 50.000,-- zu dem Angebot.
Lage
Das repräsentative Villen-Duo entstand auf einem wunderschönen Westgrundstück in einer der beliebtesten Straßen des Elbvorortes Othmarschen in traumhafter Lage direkt am Jenischpark. Die Straße ist geprägt von großzügigen Villen, eingebettet in gepflegte, weitläufige Gärten. Einkaufsmöglichkeiten, Banken, Ärzte und Dienstleistungszentren sind in der exklusiven Waitzstraße und im Zentrum Nienstedtens schnell zu erreichen. Kindergärten, Grund- und weiterführende Schulen, die Internationale Schule und die Rudolf-Steiner-Schule liegen in der Nähe. Die großen Landschaftsparks der Elbvororte, der Botanische Garten, der Hamburger Polo Club, die nahe Elbe und weitere Sportvereine der Umgebung bieten umfangreiche Möglichkeiten zur Freizeitgestaltung. Für eine optimale Anbindung an die Hamburger Innenstadt sorgen diverse Buslinien und die S-Bahnstation Klein Flottbek.
Courtage
Bei wirksamem Abschluss eines notariellen Kaufvertrages ist eine Maklercourtage in Höhe von 3,57 % inkl. 19 % ges. MwSt., bezogen auf den vereinbarten Kaufpreis, verdient und fällig und vom Käufer an die Firma MEISSLER & CO zu zahlen, die hierdurch einen unmittelbaren Zahlungsanspruch gegenüber dem Käufer erhält. Die Grunderwerbsteuer sowie die Notar- und Gerichtskosten sind vom Käufer zu tragen. Alle Angaben über diese Immobilie beruhen auf Informationen, die uns der Auftraggeber zur Verfügung gestellt hat. Für die Richtigkeit, Aktualität und Vollständigkeit dieser Angaben übernehmen wir keine Gewähr. Irrtum und Zwischenverkauf vorbehalten.
Kontakt
Büro Nienstedten
Nienstedtener Marktplatz 29
22609 Hamburg
Tel. (040) 86 44 44
Fax. (040) 86 64 50 15
Alternative Objekte
Kaufen, Haus, Hamburg - Blankenese, Deutschland
ca. 176 m²
Wohnfläche5,5
Zimmer890 m²
GrundstückKaufen, Haus, Hamburg - Groß Flottbek, Deutschland
ca. 197 m²
Wohnfläche5,5
Zimmer510 m²
GrundstückKaufen, Grundstück, Hamburg - Iserbrook, Deutschland
ca. 382 m²
Wohnfläche1.014 m²
Grundstück