Einfamilienhaus im Hochkamp
Hamburg - Nienstedten, Deutschland
Kaufpreis:
2.150.000 Euro
Eckdaten
| Objekt ID: | N-0336 |
|---|---|
| Baujahr: | 1960 |
| Art des Energieausweises: | bedarfsorientiert |
| Endenergiebedarf: | 356.10 kWh/m² |
| Grundstücksfläche: | ca. 1.501 m² |
| Wohnfläche: | ca. 189 m² |
| Zimmer: | 5,5 |
| Schlafzimmer: | 3 |
| Bäder: | 2 |
| Garage/Stellplätze: | 2 |
| Kaufpreis: | 2.150.000 EUR |
Objektbeschreibung
Dieses Einfamilienhaus liegt in einer der begehrtesten Wohngegenden Hamburgs, in bevorzugter und ruhiger Wohnlage von Hamburg-Hochkamp. Die grüne Umgebung kombiniert mit einer hervorragenden Anbindung an die Innenstadt und die Nähe zur Elbe bieten eine ideale Mischung aus Erholung und urbanem Komfort.
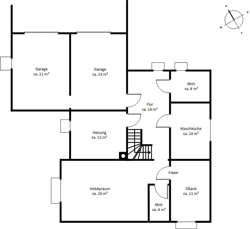
Auf einem Grundstück mit einer Fläche von 1.501 m² wurde im Jahr 1960 das Einfamilienhaus errichtet. Es besticht durch zeitlose Architektur und individuelle Entwicklungsmöglichkeiten. Der Grundriss zeigt eine funktionale und familienfreundliche Aufteilung. Das Haus ist voll unterkellert und hat zwei Tiefgaragenplätze.
Der großzügige Wohnbereich, dem eine besonders große Terrasse vorgelagert ist, bildet das Herzstück des Hauses. Große Fenster, die den Blick in den wunderschönen Garten ermöglichen, sorgen für eine helle und einladende Atmosphäre.
Der gepflegte Garten ist zum Südwesten ausgerichtet und durch den umliegenden Baumbestand kaum einsehbar.
Dieses Haus bietet ein attraktives Zuhause für eine Familie, ermöglicht aber auch ein sehr bequemes Wohnen für nur zwei Personen. Es befindet sich seit dem Bau im gleichen Familienbesitz. Eine Renovierung in den zeitgemäßen Zustand ist zu empfehlen.
Für die Errichtung eines Neubaus, ist der Bebauungsplan Nienstedten 11 in Verbindung mit der Hochkamp Klausel maßgebend. Die baurechtlichen Rahmenbedingungen ermöglichen die Errichtung eines großzügigen Einfamilienhauses, welches sich in das hochwertige Wohnumfeld einfügt.
Uns liegt eine Bebauungsanalyse eines Architektenbüros vor, die wir Ihnen bei näherem Interesse gerne zur Verfügung stellen.
Wir laden Sie sehr herzlich zu einer Besichtigung ein.
Ausstattung
| Keller | |
|---|---|
| Boden | Fliesen |
| Kamin / Ofen |
Lage
Die Immobilie liegt im Hamburger Villenviertel Hochkamp, einem in seiner Art einzigartigen und herausragenden Bereich in den Hamburger Elbvororten. Der Bereich Hochkamp sorgt mit seinen großzügigen Grundstücken für ein parkähnliches Erscheinungsbild. Der idyllische Ortskern von Nienstedten mit seiner traditionellen Bebauung sowie den unterschiedlichen Geschäften des täglichen Bedarfs und den verschiedenen Restaurants ist zu Fuß erreichbar. Eine Vielzahl an Einkaufsmöglichkeiten bietet das nahe gelegene Elbe-Einkaufszentrum. Eine optimale Anbindung an die öffentlichen Verkehrsmittel ist durch die S-Bahnstation Hochkamp sowie durch verschiedene Buslinien gewährleistet. Kindergärten, Grund- und weiterführende Schulen sowie die Internationale Schule befinden sich in unmittelbarer Erreichbarkeit.
Courtage
3,57 % inkl. MwSt.
Kontakt
Büro Blankenese
Blankeneser Bahnhofstraße 8
22587 Hamburg
Tel. (040) 86 44 44
Fax. (040) 86 64 50 15
Alternative Objekte
Kaufen, Wohnung, Hamburg - Blankenese, Deutschland
ca. 126 m²
Wohnfläche4
ZimmerKaufen, Haus, Hamburg - Blankenese, Deutschland
ca. 176 m²
Wohnfläche5,5
Zimmer890 m²
GrundstückKaufen, Haus, Hamburg - Blankenese, Deutschland
ca. 162 m²
Wohnfläche5,5
Zimmer2.850 m²
Grundstück