Einfamilienhaus im Herzen von Nienstedten
Hamburg - Nienstedten, Deutschland
Kaufpreis:
1.690.000 Euro
Eckdaten
| Objekt ID: | B-0389 |
|---|---|
| Baujahr: | 1933 |
| Art des Energieausweises: | bedarfsorientiert |
| Endenergiebedarf: | 387.10 kWh/m² |
| Grundstücksfläche: | ca. 667 m² |
| Wohnfläche: | ca. 134 m² |
| Zimmer: | 5 |
| Schlafzimmer: | 4 |
| Bäder: | 1 |
| Garage/Stellplätze: | 6 |
| Kaufpreis: | 1.690.000 EUR |
Objektbeschreibung
Dieses Einfamilienhaus, wurde im Jahr 1933 in Südausrichtung auf einem großzügigen Eckgrundstück von ca. 667 m² mitten im Ortskern erbaut.
Eine Gesamtfläche von etwa 220 m², erstreckt sich auf ca. 134 m² Wohnfläche und ca. 86 m² Nutzfläche.
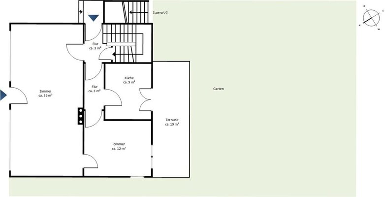
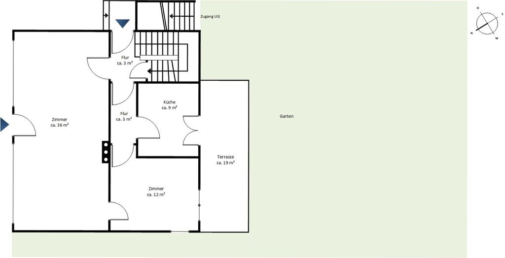
Im Erdgeschoss befinden sich zwei Zimmer, wobei das nördliche Zimmer einst als großer Verkaufsraum genutzt wurde – hier wurde früher ein Einzelhandel betrieben. Angrenzend befindet sich eine Küche, die direkten Zugang zur Terrasse und zum Garten bietet.
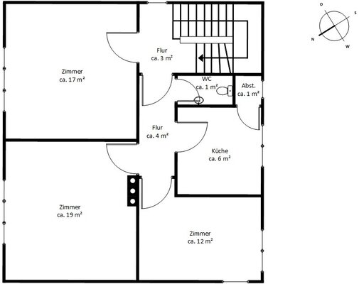
Das weitere Zimmer befindet sich im süd- westlichen Teil des Erdgeschosses mit Blick in den Garten. Im ersten Obergeschoss finden Sie drei Zimmer, ein Gäste-WC sowie eine weitere Küche vor, während sich im zweiten Obergeschoss zwei Räume, die in der Vergangenheit als Schlafzimmer genutzt wurden, und ein zusätzlicher Dachbodenraum für Stauraum oder für eine kreative Nutzung befinden.
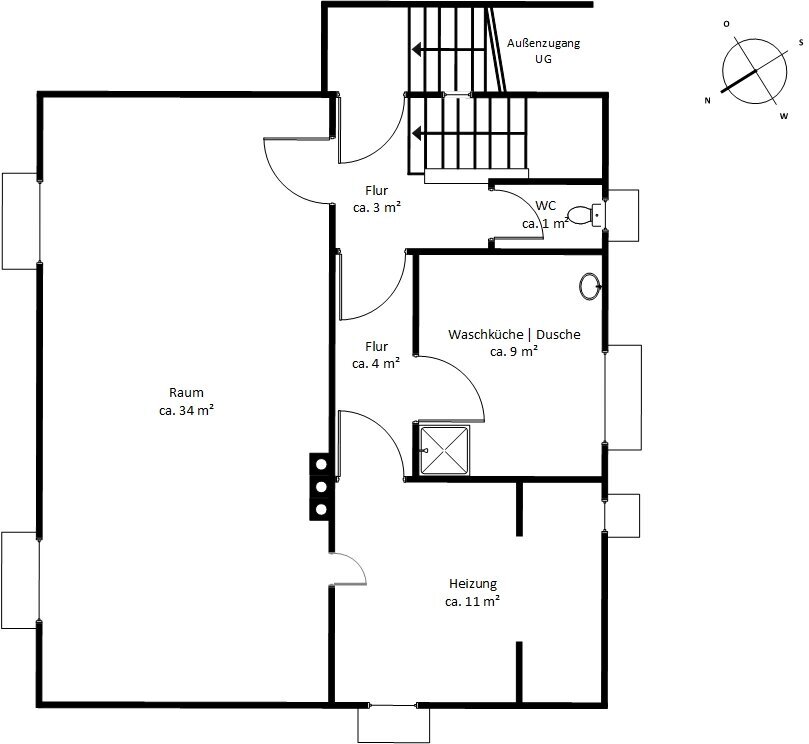
Das Haus ist vollunterkellert und bietet auf etwa 62 m² eine vielseitige Nutzflächen.
Das Grundstück ist zusätzlich seitlich in westlicher Richtung vom Newmans Park aus zu erreichen. Es verfügt hier über eine Zufahrt, so dass von hier die massiv gebaute Doppelgarage sowie der Carport zu erreichen sind.
Das Grundstück kann nach Maßgabe des Bebauungsplan Nienstedten 8 bebaut werden. Dieser sieht eine Allgemeine Wohnnutzung (WA) und eine zweigeschossige Bebauung vor. Das Maß der baulichen Nutzung wird durch ein ausgewiesenes Baufenster beschränkt.
Ausstattung
| Keller | |
|---|---|
| Boden | Fliesen |
Lage
Hamburg - Nienstedten zählt zu den besonders bevorzugten Wohnlagen der Elbvororte. Inmitten des Ortskerns, unweit des Westerparks, des Hirschparks, des Jenischparks und der Elbe gelegen, befindet sich die Immobilie in einer sehr attraktiven und beliebten Lage. Die traditionelle Bebauung der Umgebung schafft eine ansprechende, fast dörfliche Atmosphäre. In der näheren Umgebung befinden sich zahlreiche Grünanlagen. Das schnell erreichbare Elbufer ermöglicht eine attraktive Auswahl an Freizeitaktivitäten. Das idyllische Zentrum Nienstedtens mit der Vielzahl an Geschäften, Ärzten und Restaurants ist zu Fuß erreichbar. Die Anbindung an die Hamburger Innenstadt ist durch die nahe gelegenen S-Bahnstationen Hochkamp sowie Klein Flottbek und durch die Buslinien optimal. Kindergärten, Grund- und weiterführende Schulen befinden sich unmittelbarer Nähe.
Courtage
3,57 % inkl. MwSt.
Kontakt
Büro Blankenese
Blankeneser Bahnhofstraße 8
22587 Hamburg
Tel. (040) 86 44 44
Fax. (040) 86 64 50 15
Alternative Objekte
Kaufen, Haus, Hamburg - Rissen, Deutschland
ca. 144 m²
Wohnfläche5
Zimmer1.466 m²
GrundstückKaufen, Grundstück, Hamburg - Rissen, Deutschland
1.466 m²
GrundstückKaufen, Haus, Hamburg - Hochkamp, Deutschland
ca. 189 m²
Wohnfläche5,5
Zimmer1.501 m²
Grundstück