Architektonisches Meisterwerk | Repräsentative Villa in Bestlage
Hamburg - Ottensen, Deutschland
Kaufpreis:
10.800.000 Euro
Eckdaten
| Objekt ID: | O-0017_1 |
|---|---|
| Baujahr: | 1903 |
| Grundstücksfläche: | ca. 1.955 m² |
| Wohnfläche: | ca. 658 m² |
| Zimmer: | 10 |
| Schlafzimmer: | 6 |
| Bäder: | 6 |
| Garage/Stellplätze: | 4 |
| Kaufpreis: | 10.800.000 EUR |
Objektbeschreibung
In einer der besten Lagen der Stadt, wurde im Jahr 1903 diese einmalige Villa erbaut. Das repräsentative Grundstück besticht durch seine Vielfältigkeit, sei es durch die Nutzung der Gärten vor und hinter der Villa oder durch die Abstellmöglichkeiten von Fahrzeugen auf der großen Auffahrt.
Das äußere Erscheinungsbild der Villa wurde für die Erhaltung und Restaurierung prämiert. 2015 wurde die Statik des Hauses grundlegend erneuert. Zudem wurden die gesamte Elektrik, die Wasserleitungen und die Wohnungen in der Beletage und im ersten Obergeschoss aufwendig saniert.
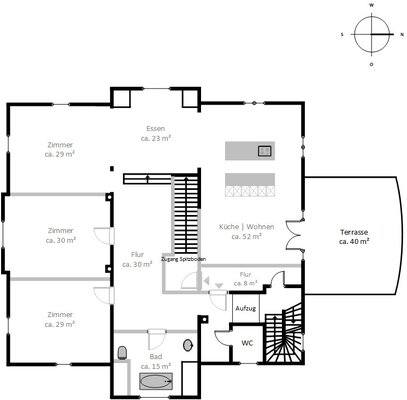
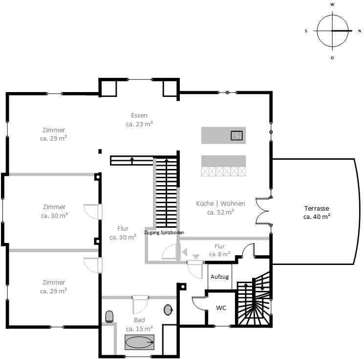
Die Villa ist in drei großzügige Wohnungen und in eine Gewerbeeinheit unterteilt, eine Abgeschlossenheitsbescheinigung liegt vor. Im Souterrain befindet sich die Gewerbeeinheit mit einer Gesamtfläche von ca. 304 m². Der Zugang erfolgt über einen eigenen Eingang auf der Westseite der Villa. Die Wohnungen im zweiten Obergeschoss mit einer Gesamtfläche von ca. 296 m² und im Dachgeschoss mit einer Gesamtfläche von ca. 175 m² wurden bisher nicht ausgebaut und ermöglichen damit viele neue Optionen. Eine Genehmigung für den Ausbau einer Dachterrasse liegt vor.
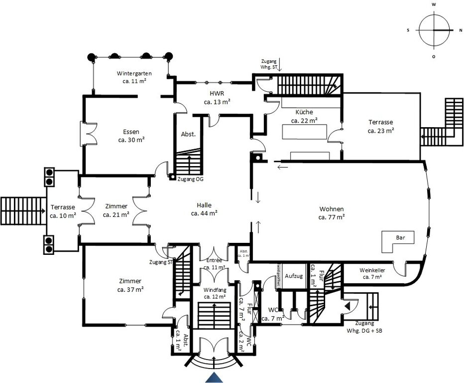
Die größte Wohneinheit mit einer Gesamtfläche von ca. 658 m² erstreckt sich über die Beletage und über das erste Obergeschoss. Der Zugang erfolgt über einen repräsentativen Eingang auf der Ostseite und führt durch einen Windfang in das Entrée mit einer Garderobe und drei separaten WCs. Die sich anschließende majestätische Eingangshalle bildet den zentralen Ausgangspunkt der Beletage und ermöglicht den Zugang zu allen Räumen dieser Ebene. Der ca. 77 m² große Wohnbereich mit der eleganten Bar ist von außergewöhnlichen Stuckornamenten gesäumt. Zudem befinden sich auf dieser Ebene nach Süden ausgerichtet das großzügige Esszimmer und drei weitere Zimmer. Von hier aus ist der Vordergarten des Hauses über eine Terrasse mit neobarocken Säulen und Fassadenelementen zu begehen. Die Küche mit angrenzendem Hauswirtschaftsraum ermöglicht den Zugang sowohl in den Wohnbereich als auch über eine großzügige Terrasse in den rückwärtigen Garten der Villa. Die gesamte Ebene ist mit original Eichenparkett in Fischgrätmuster belegt, welches aufwendig aufgearbeitet worden ist.
Durch das beeindruckende Treppenhaus gelangt man in das erste Obergeschoss, das fünf Schlafzimmer sowie vier nach höchstem Standard sanierte Bäder präsentiert. Besonders hervorzuheben ist das Hauptschlafzimmer mit zwei Ankleiden und zwei Bädern. Dieser Bereich wird durch eine Sicherheitstür, die sich durch modernste polymere Flüssigkeit undurchsichtig schalten lässt, von der Halle getrennt. Das Schlafzimmer mit einer Fläche von ca. 38 m² bietet einen 270° Blick über das Grundstück. Der Boden ist mit aufgearbeitetem Schiffsparkett in Eiche versehen. In den Ankleiden sowie in den weiteren Schlafzimmern sind die original Pitchpine Dielen ebenfalls aufgearbeitet worden.
Beide Ebenen wurden zusätzlich mit einer modernen Wandheizung versehen, was einen sehr hohen Komfort bietet.
Der interne Fahrstuhl und ein separates Treppenhaus führen bis in das zweite Obergeschoss der Villa.
Außenstellplätze sind direkt vor der Villa möglich. Zusätzlich sind vier Tiefgaragenstellplätze der Villa im rückwärtigen Gebäude zugehörig.
Für die Sanierung der Villa wurde ein besonderes Augenmerk auf hochwertige Materialien sowie auf die Erhaltung und Restaurierung von bestehenden Ornamenten gelegt.
Da die Immobilie unter Denkmalschutz steht, ist kein Energieausweis erforderlich.
Ausstattung
| Einbauküche | |
|---|---|
| Keller | |
| Boden | Fliesen, Parkett |
| Kamin / Ofen | |
| Alarmanlage |
Lage
Hochherrschaftliche Villen auf großen Grundstücken, teilweise mit dem Blick auf die Elbe und auf die Schiffe aus aller Welt, verleihen dieser Straße und ihren Immobilien ein unvergleichliches Weltstadtambiente mitten in einer Parklandschaft, den Hamburger Elbvororten. Vielfältige Einkaufsmöglichkeiten mit einem internationalen Angebot finden sich in kurzer Entfernung im lebendigen Trendviertel Ottensen. Grund- und weiterführende Schulen liegen in der Nähe. Diverse Buslinien sorgen für eine schnelle Verbindung zur Hamburger Innenstadt. Ottensen ist historisch gewachsen und verbindet wie kaum ein anderer Hamburger Stadtteil seine historische Herkunft mit der modernen Zeit. Hier kann man gleichzeitig Großstadtflair genießen und seine Balance zwischen Wohnen und Arbeiten finden. Wer zeitgemäßen Lebensstil sucht, wird ihn hier finden. Denn die Seele Ottensens ist kreativ und jung und zeigt sich im gesamten Erscheinungsbild, das vom vielfältigen kulturellen Geschehen geprägt ist. Von der berühmten Fabrik, den Zeise-Hallen, den Theatern bis hin zu diversen Szenelokalen - Ottensen ist Hamburg live. Eine optimale Anbindung an die öffentlichen Nahverkehrsmittel bieten verschiedene Buslinien und der Fern- und Regionalbahnhof Altona. Die Erreichbarkeit des Hamburger Flughafens ist ebenfalls als sehr gut zu bezeichnen.
Courtage
3,57 % inkl. ges. MwSt.
Kontakt
Büro Blankenese
Blankeneser Bahnhofstraße 8
22587 Hamburg
Tel. (040) 86 44 44
Fax. (040) 86 64 50 15
Alternative Objekte
Kaufen, Wohnung, Hamburg - Othmarschen, Deutschland
ca. 219 m²
Wohnfläche5
ZimmerKaufen, Wohnung, Hamburg - Blankenese, Deutschland
ca. 97 m²
Wohnfläche3
ZimmerKaufen, Haus, Hamburg - Blankenese, Deutschland
ca. 176 m²
Wohnfläche5,5
Zimmer890 m²
Grundstück