Altbau in seiner schönsten Form!
Hamburg - Groß Flottbek, Deutschland
Kaufpreis:
1.350.000 Euro
Eckdaten
| Objekt ID: | B-0556 |
|---|---|
| Baujahr: | 1905 |
| Art des Energieausweises: | verbrauchsorientiert |
| Energieverbrauch-Kennwert: | 142.20 kWh/m² |
| Grundstücksfläche: | ca. 458 m² |
| Wohnfläche: | ca. 143 m² |
| Zimmer: | 5 |
| Schlafzimmer: | 2 |
| Bäder: | 2 |
| Kaufpreis: | 1.350.000 EUR |
Objektbeschreibung
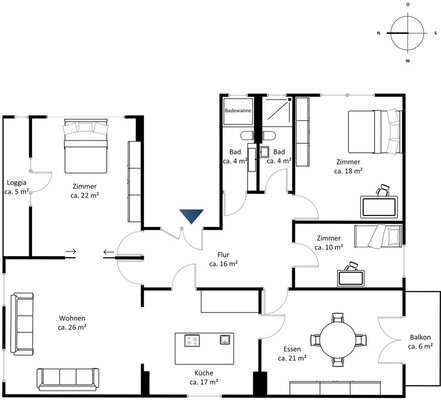
Diese charmante Altbauwohnung befindet sich in einem stilvollen Gründerzeithaus aus dem Jahr 1905 mit lediglich vier Wohneinheiten und vereint historischen Charakter mit modernem Wohnkomfort. Die im zweiten Obergeschoss gelegene Wohnung erstreckt sich über großzügige ca. 143 m² Wohnfläche und bietet insgesamt fünf Zimmer. Bereits beim Betreten beeindruckt das stilvolle Ambiente mit einer Deckenhöhe von ca. 3,20 m sowie hochwertigem Dielenboden, der den klassischen Altbaucharme unterstreicht.
Herzstück der Wohnung ist der offene Wohn- und Essbereich, der durch eine elegante Schiebetür miteinander verbunden ist und sowohl Offenheit als auch Rückzugsmöglichkeiten bietet. Die angrenzende offene Küche ist mit einer moderne Einbauküche des Fabrikats Vaclucine und hochwertigen Einbaugeräten ausgestattet und fügt sich harmonisch in das Wohnkonzept ein.
Die Wohnung verfügt über zwei gut geschnittene Schlafzimmer sowie ein weiteres Zimmer, das sich hervorragend als Arbeits-, Gäste- oder Ankleidezimmer eignet.
Die im Jahr 2012 modernisierten Bäder präsentieren sich im klassischen Altbauschnitt und überzeugen durch eine zeitgemäße, stilvolle Ausstattung und sowohl das Vollbad als auch das separate Duschbad verfügen über ein Fenster. Ein Balkon nach Süden ausgerichtet sowie eine zusätzliche Loggia erweitern den Wohnraum ins Freie. Die Sanierung der straßenseitigen Logien sowie der Fassadenelemente wurde bereits beschlossen und vollständig finanziert und wird zeitnah ausgeführt. Die Beheizung erfolgt über eine Gaszentralheizung (2009).
Ein Kellerraum ist der Wohnung zugehörig.
Ausstattung
| Einbauküche | |
|---|---|
| Balkon |
Lage
Diese besondere Immobilie befindet sich in einer der begehrtesten Wohnlagen Hamburgs – im charmanten Stadtteil Groß Flottbek. Geprägt von historischer Villenbebauung, grünen Straßen und der Nähe zur Elbe bietet das Viertel ein gehobenes, familienfreundliches Wohnumfeld mit hoher Lebensqualität. Einkaufsmöglichkeiten, exklusive Boutiquen, Ärzte und Banken finden sich in der beliebten Waitzstraße oder im nahegelegenen Elbe-Einkaufszentrum. Kindergärten, Schulen sowie die Internationale Schule liegen in unmittelbarer Umgebung. Die Verkehrsanbindung ist hervorragend: Die S-Bahn-Station Othmarschen und mehrere Buslinien sind fußläufig erreichbar, die Hamburger Innenstadt ebenso wie der Flughafen (ca. 25 Minuten über die A7) schnell angebunden. Zahlreiche Parks und Grünanlagen in der Nähe laden zu Spaziergängen, Sport und Familienausflügen ein und verbinden urbanes Wohnen mit naturnaher Ruhe.
Courtage
3,57 % inkl. MwSt.
Kontakt
Büro Blankenese
Blankeneser Bahnhofstraße 8
22587 Hamburg
Tel. (040) 86 44 44
Fax. (040) 86 64 50 15
Alternative Objekte
Kaufen, Haus, Hamburg - Othmarschen, Deutschland
ca. 365 m²
Wohnfläche10
Zimmer2.941 m²
GrundstückKaufen, Haus, Hamburg - Hochkamp, Deutschland
ca. 260 m²
Wohnfläche5
Zimmer3.440 m²
GrundstückKaufen, Grundstück, Hamburg - Rissen, Deutschland
904 m²
Grundstück