Großzügiges Grundstück in Rissen

Hamburg - Rissen, Deutschland

Kaufpreis:

1.070.000 Euro


Eckdaten

Objekt ID: B-0547
Baujahr: 1967
Art des Energieausweises: bedarfsorientiert
Endenergiebedarf: 348.00 kWh/m²
Grundstücksfläche: ca. 1.466 m²
Wohnfläche: ca. 144 m²
Zimmer: 5
Schlafzimmer: 3
Bäder: 1
Kaufpreis: 1.070.000 EUR

Objektbeschreibung

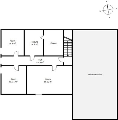
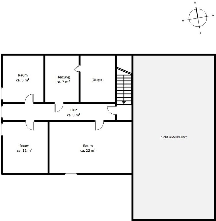
In einer beliebten Wohnlage in Hamburg-Rissen befindet sich dieses großzügige Grundstück mit einer Größe von 1.466 m², bebaut mit einem unterkellerten Einfamilienhaus aus dem Jahre 1967 mit rund 149 m² Wohnfläche. Der weitläufige Garten ist überwiegend nach Süden ausgerichtet. Über eine Zufahrt ist eine Garage zu erreichen. Der Baumbestand im nördlichen Bereich des Grundstücks sorgt für Privatsphäre. Die Größe des Grundstücks in Verbindung mit dem geltenden Baurecht gibt dem zukünftigen Eigentümer die Möglichkeit, das Bestandsobjekt zu sanieren, zu erweitern oder das eigene Bauprojekt zu realisieren.

Für das Grundstück gilt der Bebauungsplan Rissen 7, welcher folgende Ausweisung vorsieht: reines Wohngebiet, maximal zwei Vollgeschosse und eine offene Bauweise. Zusätzlich zu beachten sind die Vorgaben der Grundflächenzahl von 0,4 und der Geschossflächenzahl von 0,6. Hiervon ist insbesondere die GFZ der bestimmende Faktor und ermöglicht eine zu errichtende Wohnfläche von bis zu 650 m². Hier kann nach Ihrer Planung ein Ein-, Zwei- oder Mehrfamilienhaus entstehen.

Wir laden Sie herzlich zu einer Besichtigung sowie einem Beratungstermin ein.


Lage

Das Objekt befindet sich in einer ruhigen Anwohnerstraße in Hamburg - Rissen, geprägt von Einfamilienhäusern auf großen Grundstücken und gepflegten Gärten mit altem Baumbestand. Die Straße zählt aufgrund ihrer ruhigen Lage in Rissen zu den bevorzugten Lagen der Elbvororte. Zahlreiche Freizeitmöglichkeiten wie Golf, Reiten, Tennis, Hockey, Joggen und Segeln sind gegeben sowie die großen Landschaftsparks in Rissen - das Naturschutzgebiet Wittenbergener Heide, der Wald Falkenstein, das Naturschutzgebiet am Klövensteen und auch der Elbstrand befinden sich in der nahen Umgebung. Kindergärten, Grundschulen und Gymnasien sowie Einkaufsmöglichkeiten für den täglichen Bedarf im Ortskern von Rissen sind in wenigen Minuten bequem zu erreichen. Diverse Buslinien und die S-Bahnstation Rissen ermöglichen eine gute Anbindung an die Hamburger Innenstadt.


Courtage

3,57 % inkl. ges. MwSt.

Kontakt

Büro Blankenese

Blankeneser Bahnhofstraße 8
22587 Hamburg

Tel. (040) 86 44 44
Fax. (040) 86 64 50 15

Alternative Objekte

Kaufen, Wohnung, Hamburg - Nienstedten, Deutschland

ca. 112 m²

Wohnfläche

4

Zimmer

Kaufen, Wohnung, Hamburg - Nienstedten, Deutschland

ca. 161 m²

Wohnfläche

5

Zimmer

Kaufen, Wohnung, Hamburg - Lokstedt, Deutschland

ca. 67 m²

Wohnfläche

3

Zimmer