Der beste Blick - Wohnen auf dem Süllberg
Hamburg - Blankenese, Deutschland
Kaufpreis:
4.800.000 Euro
Eckdaten
| Objekt ID: | N-0252 |
|---|---|
| Baujahr: | 2002 |
| Art des Energieausweises: | bedarfsorientiert |
| Endenergiebedarf: | 73.10 kWh/m² |
| Wohnfläche: | ca. 236 m² |
| Zimmer: | 4,5 |
| Schlafzimmer: | 2,5 |
| Bäder: | 2 |
| Garage/Stellplätze: | 3 |
| Kaufpreis: | 4.800.000 EUR |
Objektbeschreibung
Diese außergewöhnliche Wohnung vereint auf beeindruckende Weise Eleganz und Exklusivität. Die Lage auf dem höchsten Punkt des Süllbergs ist wirklich einzigartig und bietet einen atemberaubenden Blick auf die Elbe, der bis weit ins Alte Land reicht – ein Ausblick, den man in Hamburg nur selten finden wird.
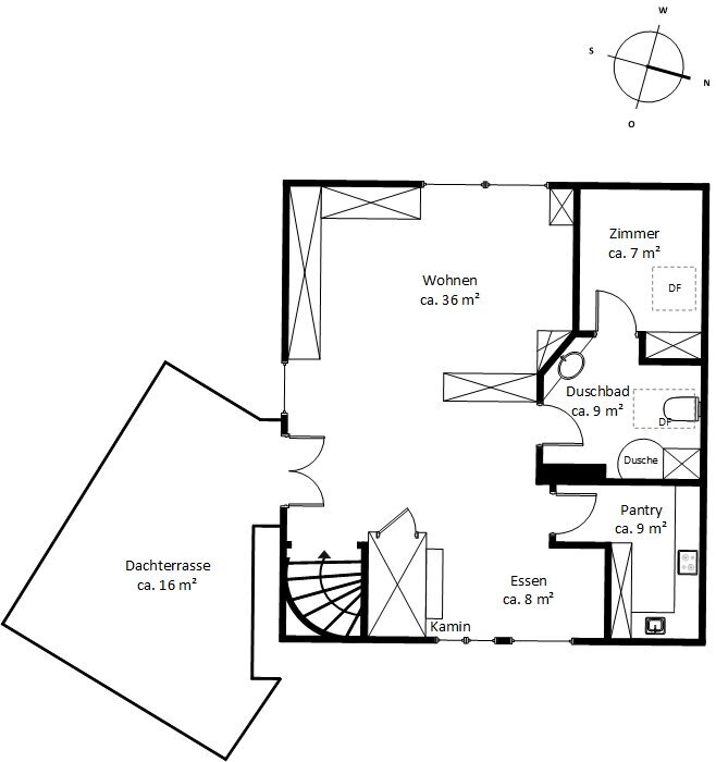
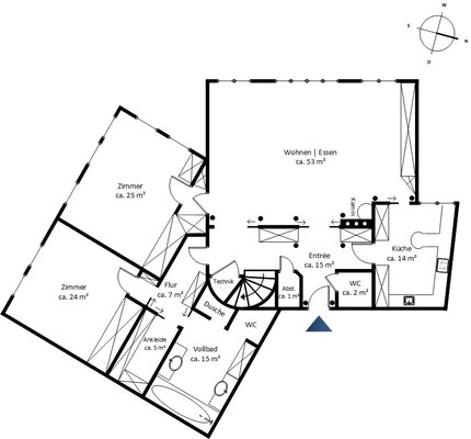
Die großzügige Wohnfläche von ca. 236 m² erstreckt sich über zwei Etagen und beeindruckt durch ihre klare und repräsentative Raumaufteilung. Im unteren Bereich befindet sich das stilvolle Wohnzimmer, das durch exquisite Tischlerarbeiten und edle Materialien besticht. Die helle, im Landhausstil gehaltene Küche öffnet sich zum angrenzenden Esszimmer. Zwei großzügige Schlafzimmer, ein elegantes Bad mit edlem Marmor und eine hochwertig ausgestattete Ankleide bieten höchsten Komfort. Die lichtdurchfluteten Räume gewähren nahezu überall einen spektakulären Blick auf die Elbe. Alle Einbauten wurden maßgefertigt, und bei der Wahl der Materialien wurde auf höchste Qualität geachtet.
Über eine interne Treppe gelangt man in die Staffelgeschossebene, die mit einem beeindruckenden Elbblick aufwartet. Hier befinden sich ein lichtdurchfluteter Salon, eine Pantryküche, ein weiteres Bad und ein gemütliches Gästezimmer – stilvoll und funktional zugleich. Das absolute Highlight ist die großzügige Dachterrasse, die einen unvergleichlichen Panorama-Blick auf die Elbe bietet. Vom Hamburger Hafen im Osten bis zu den Elbinseln im Westen erstreckt sich der Ausblick – ein wirklich einzigartiges Erlebnis.
Zur Wohnung gehören drei Tiefgaragenstellplätze sowie ein geräumiger Kellerraum.
Ausstattung
| Einbauküche | |
|---|---|
| Kamin / Ofen | |
| Pool | |
| Aufzug |
Lage
Der Süllberg gilt über die Stadtgrenzen von Hamburg hinaus als einzigartige Lage im exklusiven Blankenese und ist seit jeher ein begehrter Ort für diejenigen, die das Besondere suchen. Hier lässt sich der Traum vom Elbblick auf unvergleichliche Weise verwirklichen. Blankenese selbst überzeugt mit einem charmanten Ortskern, der alle Annehmlichkeiten des täglichen Lebens bietet. Der beliebte Wochenmarkt, gemütliche Cafés und Restaurants, Arztpraxen und zahlreiche Einzelhandelsgeschäfte sorgen für ein vielfältiges Angebot. Zudem ist die S-Bahn Station Blankenese bestens angebunden und ermöglicht eine schnelle Verbindung ins Hamburger Stadtzentrum sowie zum internationalen Flughafen.
Courtage
3,57 % inkl. ges. MwSt.
Kontakt
Büro Blankenese
Blankeneser Bahnhofstraße 8
22587 Hamburg
Tel. (040) 86 44 44
Fax. (040) 86 64 50 15
Alternative Objekte
Kaufen, Haus, Hamburg - Nienstedten, Deutschland
ca. 222 m²
Wohnfläche7
Zimmer890 m²
GrundstückKaufen, Haus, Hamburg - Alsterdorf, Deutschland
ca. 435 m²
Wohnfläche12,5
Zimmer1.184 m²
GrundstückKaufen, Haus, Hamburg - Othmarschen, Deutschland
ca. 109 m²
Wohnfläche4
Zimmer616 m²
Grundstück